Omschrijving

Graag verzoeken wij u een Funda aanvraag te doen, zodat wij u kunnen benaderen voor een afspraak.

Ruimte, karakter én potentie – deze royale woning in het geliefde Valkenboskwartier heeft het allemaal!
Met maar liefst vier slaapkamers, meerdere badkamers, een riante tuin met overkapping én een groot balkon is dit een huis waar je alle kanten mee op kunt. Of je nu een groot gezin hebt, werken aan huis belangrijk vindt of gewoon van veel leefruimte houdt: hier kan het.

Bij binnenkomst valt de royale hal op, met onder de trap een toilet. Vanuit de gang stap je de sfeervolle, gerenoveerde, woonkamer in, voorzien van een open haard en een karakteristieke houten vloer. De open keuken met kookeiland en ingebouwde voorraadkast vormt het hart van de woning en nodigt uit tot lange avonden koken en tafelen. De eetkamer grenst direct aan de zonnige tuin, waar openslaande deuren leiden naar een heerlijke zithoek met overkapping – een fijne plek om het hele jaar door van buiten te genieten.

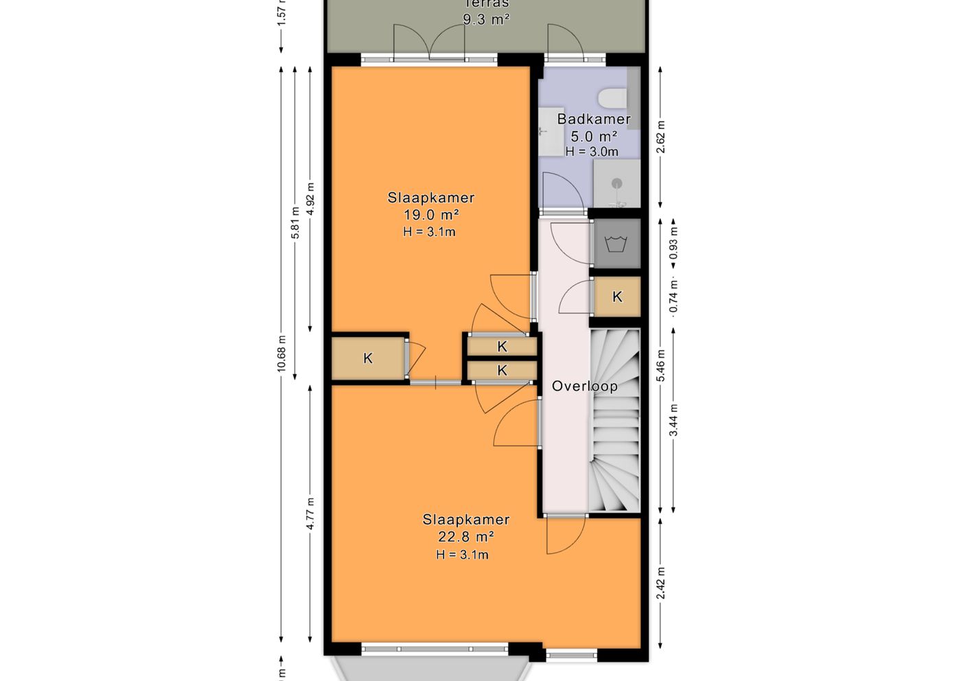
Op de eerste verdieping vind je een ruime overloop met kastruimte voor wasmachine en droger, twee grote slaapkamers en een badkamer. Zowel de badkamer als één van de slaapkamers hebben toegang tot het riante balkon, perfect voor een kop koffie in de ochtendzon.

De tweede verdieping biedt verrassend veel mogelijkheden: twee zeer ruime slaapkamers, beide met een eigen ingebouwde badkamer (douche en wastafel) en een aanrecht met wasbak. Ideaal voor logees of oudere kinderen. Daarnaast zijn er praktische voorzieningen zoals een apart toilet, een kast met aansluiting voor de omvormer van de zonnepanelen en een aparte kast voor de CV-installatie.

Highlights:

- Gelegen in beschermd stadsgebied Valkenboskwartier
- 14 zonnepanelen
- Energielabel C
- Eigen grond
- Bouwjaar 1908
- Oplevering in overleg (kan snel)
- Woonoppervlakte: 198 m² (ingemeten conform BBMI)
- Ouderdoms- en materialenclausule van toepassing
- Riante tuin met overkapping
- Groot balkon
- Veel slaapkamers en badkamers – volop mogelijkheden!

Een huis vol charme, ruimte en flexibiliteit, midden in een levendige buurt. Kom kijken en laat je verrassen door alles wat deze woning te bieden heeft.

Kenmerken

Aanvaarding

Prijs
€ 850.000 k.k.
Status
Beschikbaar
Oplevering
In overleg
Adres
Valkenboslaan 86
Postcode
2563 CN
Plaats
Den Haag

Bouw

Soort woonhuis
Herenhuis, Tussenwoning
Soort bouw
Bestaande bouw
Bouwjaar
1908
Onderhoud binnen
Goed
Onderhoud buiten
Uitstekend

Oppervlakten en inhoud

Woonoppervlakte
ca. 198m²
Perceeloppervlakte
ca. 149m²
Oppervlakte woonkamer
ca. 56m²
Inhoud
ca. 730m³

Indeling

Aantal kamers
6
Aantal slaapkamers
4
Aantal badkamers
3
Aantal verdiepingen
3
Voorzieningen
Mechanische ventilatie, TV-Kabel, Zonnepanelen, Natuurlijke ventilatie

Energie

Energielabel
C
Isolatie
Dakisolatie, Muurisolatie, Vloerisolatie, Dubbel glas
Warm water
C.V.-ketel
Verwarming
C.V.-ketel
Ketel
(Combi-ketel)

Buitenruimte

Ligging
Aan rustige weg, In woonwijk
Balkon
Ja
Tuin
Achtertuin
Achtertuin
Oost, 66m², 600×1100cm

Locatie

[ { "address": "Valkenboslaan 86", "zipCode": "2563 CN", "city": "Den Haag", "lat": 52.0755713, "lng": 4.2755084, "heading": 0, "pitch": 0 } ]

Plattegronden

Valkenboslaan 86, Den Haag plattegrond-0
Valkenboslaan 86, Den Haag plattegrond-1
Valkenboslaan 86, Den Haag plattegrond-2
Valkenboslaan 86, Den Haag plattegrond-3
Valkenboslaan 86, Den Haag plattegrond-4
Valkenboslaan 86, Den Haag plattegrond-5
Valkenboslaan 86, Den Haag plattegrond-6
Valkenboslaan 86, Den Haag plattegrond-7
Valkenboslaan 86, Den Haag plattegrond-8
Valkenboslaan 86, Den Haag plattegrond-9
Valkenboslaan 86, Den Haag plattegrond-10
Valkenboslaan 86, Den Haag plattegrond-11
Valkenboslaan 86, Den Haag plattegrond-12
Valkenboslaan 86, Den Haag plattegrond-13
Valkenboslaan 86, Den Haag plattegrond-14
Valkenboslaan 86, Den Haag plattegrond-15
Valkenboslaan 86, Den Haag plattegrond-16
Valkenboslaan 86, Den Haag plattegrond-17
Valkenboslaan 86, Den Haag plattegrond-18
Valkenboslaan 86, Den Haag plattegrond-19
Valkenboslaan 86, Den Haag plattegrond-20
Valkenboslaan 86, Den Haag plattegrond-21
Valkenboslaan 86, Den Haag plattegrond-22
Valkenboslaan 86, Den Haag plattegrond-23
Valkenboslaan 86, Den Haag plattegrond-24
Valkenboslaan 86, Den Haag plattegrond-25
Valkenboslaan 86, Den Haag plattegrond-26
Valkenboslaan 86, Den Haag plattegrond-27

Vergelijkbare woningen

Den Haag

Hooikade 21
127m²
4 kamers

€ 950.000 k.k.

Zie al ons aanbod

Den Haag

Groenland 62
178m²
6 kamers

€ 795.000 k.k.

Zie al ons aanbod

Den Haag

Houtrustlaan 38
131m²
4 kamers

€ 775.000 k.k.

Zie al ons aanbod

Den Haag

Neptunusstraat 66
160m²
9 kamers

€ 875.000 k.k.

Zie al ons aanbod

Interesse in deze woning?

Vul onderstaand formulier in en wij nemen dezelfde werkdag nog contact met u op.

Jouw bericht is naar ons verzonden. Wij nemen zo snel mogelijk contact met je op.

Sorry, we kunnen helaas niet met zekerheid vaststellen of u een mens of een geautomatiseerde bot/spammer bent. Hierdoor kunnen we het formulier dat u heeft ingevuld niet verzenden. Probeer het opnieuw of neem direct contact op met de makelaar via e-mail.

Er is iets mis gegaan met het versturen van het formulier.
Controleer of je alle velden (goed) hebt ingevoerd en probeer het nog een keer.

recaptcha
reCAPTCHA
PrivacyTerms

Direct contact

Rick de Lange
Rick de Lange

Eigenaar en makelaar

info@rickdelange.nl
+31 6 40 82 38 40