Omschrijving

Aangekocht voor een van onze aankoopklanten.

Starters opgelet!

Centraal gelegen in de gezellige groene buurt Bovenveen in Voorburg ligt dit nette 3/4-kamer appartement met een balkon op het zuidoosten, grotendeels dubbel glas en afgezonderde berging aan de achterzijde van het complex.

Deze goed onderhouden starterswoning ligt op de 2e verdieping en is voorzien van 2 slaapkamers, een ruime woonkamer, keuken, badkamer met vloerverwarming, apart toilet, wasruimte, zonnig balkon en een externe berging.

Ideaal gelegen aan de rand van Voorburg en Den Haag. In de directe nabijheid vindt u winkelcentrum ‘De Julianabaan’, basis- en middelbare scholen, diverse sportfaciliteiten, groenvoorzieningen, uitvalswegen A4; A12; A13 en het treinstation Laan van NOI. Tevens ligt het centrum van Den Haag en The Mall of the Netherlands op fietsafstand en is het strand van Scheveningen met een directe buslijn bereikbaar.

Indeling:
U betreedt het complex via een gesloten portiek met brievenbussen, beltableau en trappenhuis.

Woonlaag (2e verdieping):
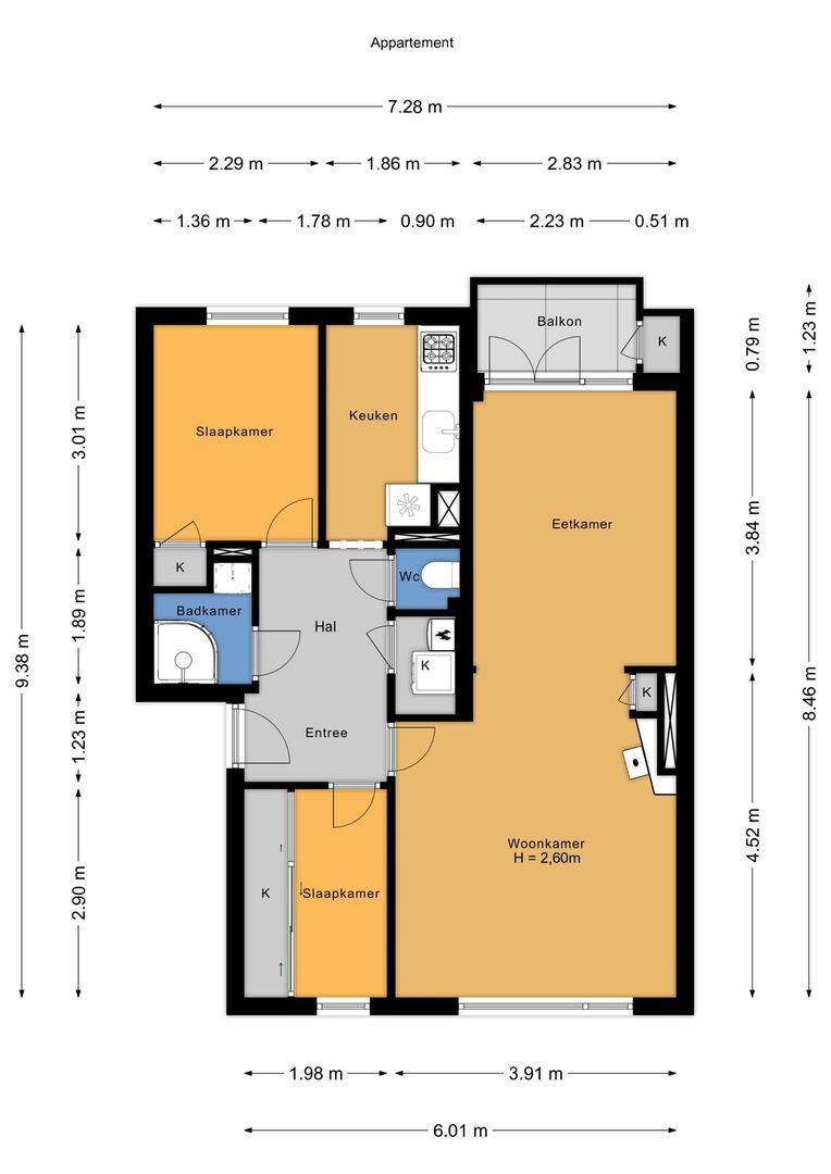
Entree, hal met toegang tot de woonkamer, keuken, 2 slaapkamers, badkamer, apart toilet en wasruimte. Royale woonkamer (ca. 26m2) over de gehele de lengte van de woning met opbergkast en toegang tot het zonnige balkon (ZO) (ca. 1.25 x 2.25) aan de achterzijde. Aan de achterzijde van de woning bevinden zich eveneens de keuken (ca. 3.00 x 1.85) welke is voorzien van diverse inbouwapparatuur en een ruime slaapkamer (ca. 3.00 x 2.30) met vaste kast. De badkamer (ca. 1.90 x 1.35) beschikt over een douche, wastafel, spiegel, elektrische vloerverwarming en spotjes. Tussengelegen een wasruimte met wasmachine- drogeraansluiting en apart toilet. Aan de voorzijde van de woning bevindt zich een slaap-/werkkamer (ca. 2.00 x 2.90) met vaste kasten. Achter het complex bevindt zich eveneens een eigen fietsenberging (ca. 2.25 x 1.30).

Bijzonderheden:
\- Woonoppervlak van ca.60m2;
\- Bouwjaar 1950;
\- Gelegen op een gewilde locatie;
\- 1/24ste aandeel in actieve VvE, bijdrage €120,- per maand;
\- CV-ketel;
\- Elektrische vloerverwarming in de badkamer;
\- Grotendeels voor van kunststof kozijnen met dubbele beglazing;
\- Eigen fietsenbergruimte;
\- Zonnig balkon op het zuid oosten;
\- Oplevering in overleg;
\- Energielabel D;
\- Rapport NEN2580 meetinstructie .

Kenmerken

Aanvaarding

Prijs
€ 250.000 k.k.
Oplevering
Per direct
Adres
Nicolaas Beetslaan 120
Postcode
2273RE
Plaats
Voorburg

Bouw

Soort appartement
Portiekwoning
Bouwjaar
1965

Oppervlakten en inhoud

Woonoppervlakte
ca. 60m²

Indeling

Aantal kamers
3
Aantal slaapkamers
2
Aantal badkamers
1

Energie

Energielabel
D

Buitenruimte

Ligging
Aan rustige weg, In woonwijk

Locatie

[ { "address": "Nicolaas Beetslaan 120", "zipCode": "2273RE", "city": "Voorburg", "lat": 52.0805569, "lng": 4.3487411, "heading": 0, "pitch": 0 } ]

Plattegronden

Nicolaas Beetslaan 120, Voorburg plattegrond-0
Nicolaas Beetslaan 120, Voorburg plattegrond-1

Vergelijkbare woningen

Voorburg

Albert Verweystraat 196
65m²
3 kamers

€ 300.000 k.k.

Zie al ons aanbod

Interesse in deze woning?

Vul onderstaand formulier in en wij nemen dezelfde werkdag nog contact met u op.

Jouw bericht is naar ons verzonden. Wij nemen zo snel mogelijk contact met je op.

Sorry, we kunnen helaas niet met zekerheid vaststellen of u een mens of een geautomatiseerde bot/spammer bent. Hierdoor kunnen we het formulier dat u heeft ingevuld niet verzenden. Probeer het opnieuw of neem direct contact op met de makelaar via e-mail.

Er is iets mis gegaan met het versturen van het formulier.
Controleer of je alle velden (goed) hebt ingevoerd en probeer het nog een keer.

recaptcha
reCAPTCHA
PrivacyTerms

Direct contact

Rick de Lange
Rick de Lange

Eigenaar en makelaar

info@rickdelange.nl
+31 6 40 82 38 40