Omschrijving

De charme van de jaren '30 met de luxe van hedendaags comfort. Dit is de beste manier om de vijf huurwoningen gelegen aan de Van Halewijnlaan in een zin samen te vatten.

Het hoogwaardige afwerkingsniveau mag in dit segment uniek genoemd worden, er is gebruik gemaakt werkelijk prachtige materialen en de woning is gerenoveerd volgens de modernste eisen op het gebied van duurzaamheid. Het appartement is tijdens de zeer ingrijpende verbouwing optimaal geïsoleerd, voorzien van een warmtepomp voor de verwarming (en koeling!), een comfortabele vloerverwarming en heeft een energielabel A++ wat garant staat voor lage en beheersbare energiekosten.

Van Halewijnlaan 2

De woning is gelegen op de hoek van de Van Halewijnlaan en het groene Van Halewijnplein. De locatie is erg populair en laat zich kenmerken door de rustige maar ook uitermate centrale ligging. In de wijk zijn tal van gezellige koffiebarretjes en (afhaal)restaurants te vinden en alle voorzieningen van een grote stad zijn binnen handbereik. Op de fiets bereikt u in 10 minuten het centrum van Den Haag en in slechts 5 minuten fietsen staat u in het historisch centrum van Voorburg met diverse speciaalzaken en veel leuke restaurants. Daarnaast bevindt het uitgebreide winkelcentrum 'De Julianabaan' met een gevarieerd winkelaanbod en twee grote supermarkten zich op 10 minuten loopafstand.

Met de auto is de woning uitstekend te bereiken, de op- en afritten naar de snelweg bevinden zich op circa 500 meter afstand. Ook de bereikbaarheid met het openbaar vervoer is uitstekend aangezien NS-Station Den Haag NOI, met directe verbindingen richting Amsterdam en Rotterdam, binnen enkele minuten is te bereiken.

Indeling:

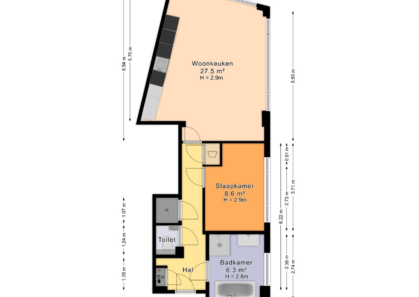
Afgesloten entree met brievenbussen en videofooninstallatie, gemeenschappelijk ontvangsthal met de meterkasten. Toegang tot het appartement. Entree van het appartement, hal met toegang tot alle vertrekken.

De woonkamer is ruim en heeft een luxe uitstraling, de woonkamer is gelegen op de hoek, wat ervoor zorgt dat deze erg licht is en een schitterend uitzicht heeft. De trendy en luxe keukenopstelling is voorzien van veel kastruimte, een strak composiet werkblad en alle denkbare inbouwgemakken zoals een koel- /vriescombinatie, een combi oven/magnetron, een inductiekookplaat met 4 kookzones, een afzuigkap, een vaatwasser en zelfs een Quooker ontbreekt niet.

Ruime slaapkamer van ca. 9m2.

De badkamer is bereikbaar vanuit de hal en is luxe uitgevoerd met fraai tegelwerk, een inloopdouche, een ruim bad, een mooi wastafelmeubel met twee wastafelkommen, een stijlvolle handdoekradiator, een verlichte en verwarmbare spiegel en alles is afgewerkt met zwarte kranen en douchegarnituur.

Bijzonderheden:

Energielabel A++++
Woonoppervlakte ca. 55m2
De woning is per 9 februari 2026 beschikbaar.
Minimale huurperiode 3 maanden (additionele kosten van toepassing)
De woning wordt volledig gemeubileerd en ingericht opgeleverd (€150 p/m)
Volledig onder architectuur gerenoveerd, unieke materiaalkeuzes en stijl (in 2023/2024)
Vloerverwarming en actieve koeling via warmtepomp Vaillant aroTherm
Luxe keuken met Siemens apparatuur en Quooker
Berging in de onderbouw beschikbaar
Woning voorzien van eigen high-speed internet aansluiting
Lage servicekosten (€60 per maand)
Voorschot verbruik elektra en water, periodieke schoonmaak en internet
Borg is gelijk aan 1 maand huur
Geen gemeentelijke huisvestingsvergunning van toepassing

Kenmerken

Aanvaarding

Prijs
€ 2.150 p.m. ex.
Inrichting
Gemeubileerd, Gestoffeerd
Status
Beschikbaar
Oplevering
09-02-2026
Adres
van Halewijnlaan 2
Postcode
2274 TR
Plaats
Voorburg

Bouw

Soort appartement
Benedenwoning, Appartement
Woonlaag
1
Soort bouw
Bestaande bouw
Onderhoud binnen
Uitstekend
Onderhoud buiten
Uitstekend

Oppervlakten en inhoud

Woonoppervlakte
ca. 55m²
Inhoud
ca. 230m³

Indeling

Aantal kamers
2
Aantal slaapkamers
1
Aantal verdiepingen
1
Voorzieningen
TV-Kabel, Zonnepanelen, Balansventilatie

Energie

Energielabel
A++++
Isolatie
Volledig geisoleerd

Buitenruimte

Ligging
Aan rustige weg, In woonwijk
Schuur
Inpandig

Locatie

[ { "address": "van Halewijnlaan 2", "zipCode": "2274 TR", "city": "Voorburg", "lat": 52.0719654, "lng": 4.3507681, "heading": 0, "pitch": 0 } ]

Vergelijkbare woningen

Voorburg

van der Marckstraat 41
125m²
5 kamers

€ 2.500 p.m. ex.

Zie al ons aanbod

Voorburg

Laan van Nieuw Oosteinde 21 D
45m²
2 kamers

€ 2.450 p.m. ex.

Zie al ons aanbod

Voorburg

Laan van Nieuw Oosteinde 21 E
45m²
2 kamers

€ 2.350 p.m. ex.

Zie al ons aanbod

Voorburg

Laan van Nieuw Oosteinde 21 D
45m²
2 kamers

€ 2.450 p.m. ex.

Zie al ons aanbod

Interesse in deze woning?

Vul onderstaand formulier in en wij nemen dezelfde werkdag nog contact met u op.

Jouw bericht is naar ons verzonden. Wij nemen zo snel mogelijk contact met je op.

Sorry, we kunnen helaas niet met zekerheid vaststellen of u een mens of een geautomatiseerde bot/spammer bent. Hierdoor kunnen we het formulier dat u heeft ingevuld niet verzenden. Probeer het opnieuw of neem direct contact op met de makelaar via e-mail.

Er is iets mis gegaan met het versturen van het formulier.
Controleer of je alle velden (goed) hebt ingevoerd en probeer het nog een keer.

recaptcha
reCAPTCHA
PrivacyTerms

Direct contact

Rick de Lange
Rick de Lange

Eigenaar en makelaar

info@rickdelange.nl
+31 6 40 82 38 40